Kernsanierte Wohnung im Hietzing, Vitusgasse 6/2

Vitusgasse 6/2, 1130 Wien

Größe
€ 85m²
Kaufpreis
€ 695.000,00

Details

Art: eigentum
Zimmer: 3
Schlafzimmer: 2
Badezimmer: 2
Toiletten: 2
Geschoß: EG
Möbliert: Nein
Terasse: Ja
Garten: Ja
Baujahr: 1900

Heizenergiebedarf

A
B
C
D
E
F
G

56,96

Kategorie: C

Kosten

Reparaturfond: Keine Angabe
Betriebskosten: € 200,00
Sonstige Kosten: Keine Angabe
Mehrwertsteuer: Keine Angabe
Gesamtkosten: Keine Angabe
Kaution: Keine Angabe
Maklerkosten: 3%

Dateien

Beschreibung

In einem generalsanierten Biedermaierhaus gelangen folgende 5 topsanierte Eigentumswohnungen in 2 Austattungskategorien in den Verkauf :


Die Ausstattung Top 1, Top 2:

 

  • Stabparkett oder Diele mit Parkettleisten ( Eiche geölt oder lackiert oder gleichwertiges mit einem Preislimit von € 35,--/m²)
  • Gaszentralheizung mit Warmwasseraufbereitung
  • voll ausgestattetes Designer Bad und WC (Armaturen/Badekeramik: Preislimit € 2.500,--)
  • Boden- und Wandfliesen bzw. auf Wunsch Naturstein (Preislimit: € 30,--/m²)
  • Beleuchtungskörper bzw. LED Leuchten
  • voll ausgestattete Küchen (Preislimit: € 5.000,--)
  • Elektroinstallationen gemäß Plan der Firma Berka oder gleichwertiges
  • Elektronische steuerbare Beschattung der Fenster

 

Die Ausstattung Top 3, Top 4, Top 5:

 

  • Stabparkett oder Diele mit Parkettleisten ( Eiche geölt oder lackiert oder gleichwertiges mit einem Preislimit von € 70,--/m²)
  • Gaszentralheizung mit Warmwasseraufbereitung
  • voll ausgestattetes Designer Bad und WC (Armaturen/Badekeramik: Preislimit € 5.000,-)
  • Boden- und Wandfliesen bzw. auf Wunsch Naturstein (Preislimit € 60,--/m²)
  • Beleuchtungskörper bzw. LED Leuchten
  • voll ausgestattete Küchen (Preislimit: € 10.000,--)
  • Elektroinstallationen gemäß Plan der Firma Berka oder gleichwertiges
  • Elektronische steuerbare Beschattung der Fenster und Balkon/Terrassentüren
  • Klimaanlage
  • Exklusiver Terrassenbelag nach Wahl, Preislimit: € 70,--/m²

 

Die Wohnungen:        


  • Top 1: 69,97 m² Wohnnutzfläche + 5,80 m² Garten/Balkon + 2,57 Kellerabteil

Kaufpreis: € 495.000,-

 

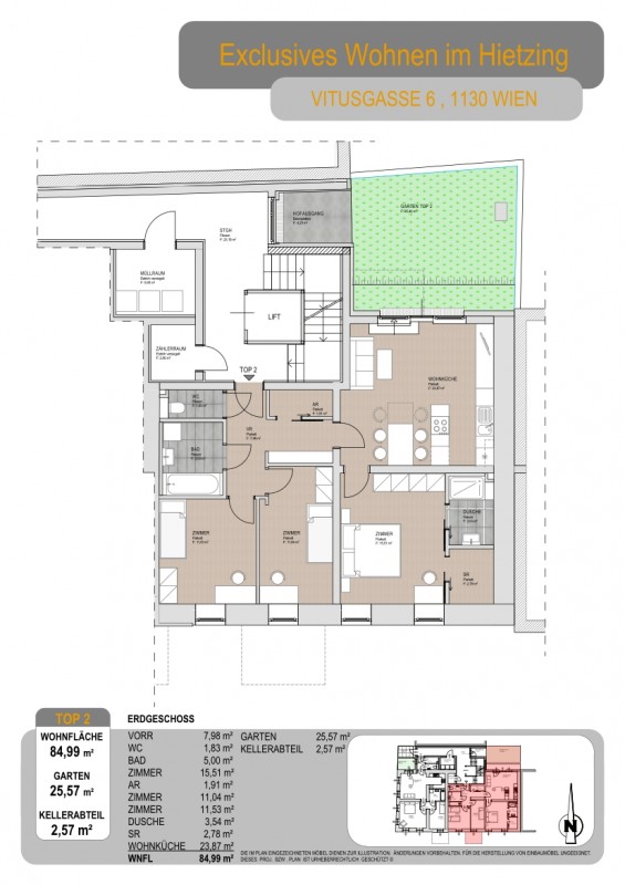
  • Top 2: 84,99 m² Wohnnutzfläche + 25,57 m² Garten/Balkon +2,57 Kellerabteil

Kaufpreis:€ 695.000.-

 

  • Top 3 Verkauft! : 95,96 m² Wohnnutzfläche + 12,88 m² Terrasse + 2,57 Kellerabteil



  • Top 4: Verkauft! 100,90 m² Wohnnutzfläche + 5,46 m² Balkon + 17,96 Terrasse + 2,57 Kellerabteil 


 

  • Top 5: Verkauft 112,44 m² Wohnnutzfläche + 10,18 m² Balkon/Terrasse + 2,57 Kellerabteil           


 

 

 

Geplanter Baubeginn Frühjahr 2020

Geplante Baufertigstellung Sommer 2021


Lage

Gegenüber der Barockkirche Ober St. Veit und des Dechant Kinzl Parkes befindet sich dieses einzigartige Biedermeirhaus in welchem lediglich 5 exklusive Wohnungen errichtet werden. Die Bushaltestelle des 53A ist fußläufig in 1 Minute und die des 54A in 3 Minuten zu erreichen. In unmittelbarer Nähe befinden sich alle notwendigen Einkaufsmöglichkeiten, diverse Gastronomie Lokale und kulturelle sowie schulische Einrichtungen. 

Als Naherholungsgebiet bittet sich der Lainzer Tiergarten an, welcher sich in einer Entfernung von 900m befindet.


Sonstiges

Allgemein

Aufgrund des neuen Fernabsatz- und Auswärtsgeschäfte-Gesetzes zur Umsetzung der EU-Verbraucherrechte-RL, ersuchen wir Sie um Ihr Verständnis, dass wir Ihnen die gewünschten Objekt-Unterlagen erst nach Ihrer Bestätigung, dass Sie unser vorzeitiges Tätigwerden wünschen und über Ihre Rücktrittsrechte aufgeklärt wurden, per Mail zusenden können. Bevor Sie die Unterlagen übermittelt bekommen, erhalten Sie eine gesonderte Mail mit dem notwendigen Hinweis. Obige Angaben basieren auf Informationen des Eigentümers. Der guten Ordnung halber möchten wir festhalten, dass im Falle eines Abschlusses mit Ihnen oder einem von Ihnen namhaft gemachten Dritten unser Honorar (lt. Honorarverordnung für Immobilienmakler, BGBI. 262 und 297/1996) 3 % des Kaufpreises zzgl. der gesetzlichen MwSt. beträgt. Es gelten unsere allgemeinen Geschäftsbedingungen. Irrtum vorbehalten. 

Auf das wirtschaftliche Naheverhältnis zwischen der Abgeberfirma und der Maklerfirma DOWA Liegenschaftsverwertungs GmbH wird besonders hingewiesen.


Energieausweis/Heizung

HWB (kWh/m²/Jahr): 56,96

HWB Energieklasse: C

fGEE: 0,93

fGEE Energieklasse: B

Heizung: Etagenheizung



Anfrage senden

Unser Kundendienst

Verkauf/Vermittlung
Dusan Dordevic
Mobil: +43664 423 08 44
Email: immo@gmx.at
Adresse: Alser Straße 63, 1080 Wien